|
|
|
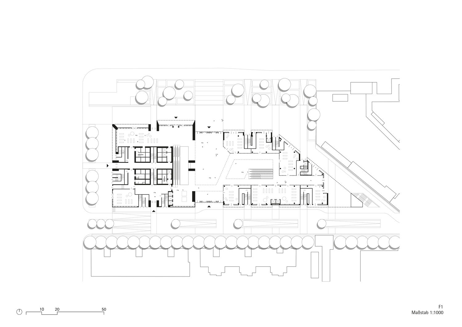
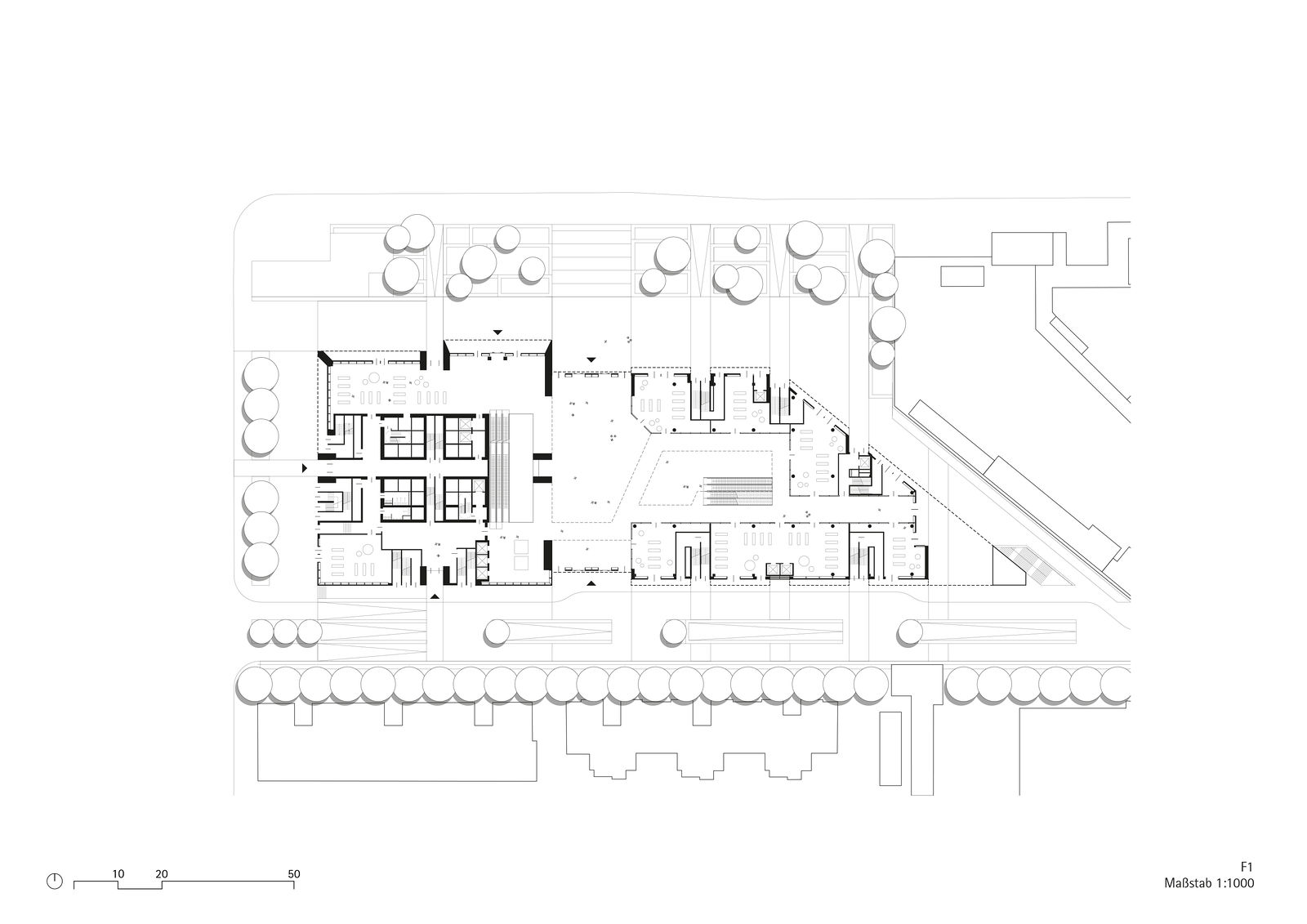
In the densely built-up center of Shenzhen, the CITIC International Building was erected as a high-rise complex on one of the last remaining plots along Shennan Middle Road, the city’s prominent east-west axis. The 258-meter-tall office tower marks a pivotal urban junction between the skyscraper clusters of Futian District, the commercial buildings of Luohu District, and the landscape of Hong Kong’s New Territories to the south. The main occupant of the building is the CITIC Group — an international corporation active in finance, industry, and infrastructure. The building’s shape is composed of four volumes of varying heights, creating a dynamic silhouette. Landscaped rooftop terraces and recessed loggias, — designed as “sky gardens”, provide open spaces at multiple levels and establish a visual and functional connection between the interior and exterior. Open atriums complement these spaces, serving as horizontal connecting elements that strengthen the social fabric within the tower. The four-story podium at the base houses publicly accessible amenities, such as restaurants and retail outlets, contributing to a vibrant street-level atmosphere. The small-scale structure of the facçade, created through vertical setbacks, gives the high-rise complex a human scale.
Awards / Certifications
2025
Press releases
Aug. 01, 2025
Competition 2016 – 1st prize Design Meinhard von Gerkan and Stephan Schütz with Nicolas Pomränke Client CCITIC Urban Development Investment Group Co., Ltd. GFA 171.650 m² Photographer
CreatAR Images
Awards / Certifications
2025
Projekt data
Competition 2016 – 1st prize Design Meinhard von Gerkan and Stephan Schütz with Nicolas Pomränke Client CCITIC Urban Development Investment Group Co., Ltd. GFA 171.650 m²
Press releases
Aug. 01, 2025
Photographer
CreatAR Images
Kontakt
gmp · Architekten von Gerkan, Marg und Partner PR & Communications public.relations@gmp.de T +49.40.88 151 0 www.gmp.de
© CreatAR Images
© CreatAR Images
© CreatAR Images
© CreatAR Images
CreatAR Images
© CreatAR Images
© CreatAR Images
© CreatAR Images
© CreatAR Images
© CreatAR Images
© CreatAR Images
© CreatAR Images
© CreatAR Images
© CreatAR Images
© gmp Architects
© gmp Architects
© gmp Architekten
© gmp Architekten
Hinweise zum Copyright Eine honorarfreie Veröffentlichung ist nur gestattet im Rahmen eines redaktionellen Beitrags
über die Architektur der Architekten von Gerkan, Marg und Partner im Kontext des Inhaltes dieses
Booklets. Eine vollständige Nennung der Urheber des Bild- und Planmaterials in eindeutiger
Zuordnung ist obligatorisch. Mit freundlicher Bitte um Zusendung eines Belegexemplars an den folgenden PR-Kontakt: gmp · Architekten von Gerkan, Marg und Partner |