|
|
|
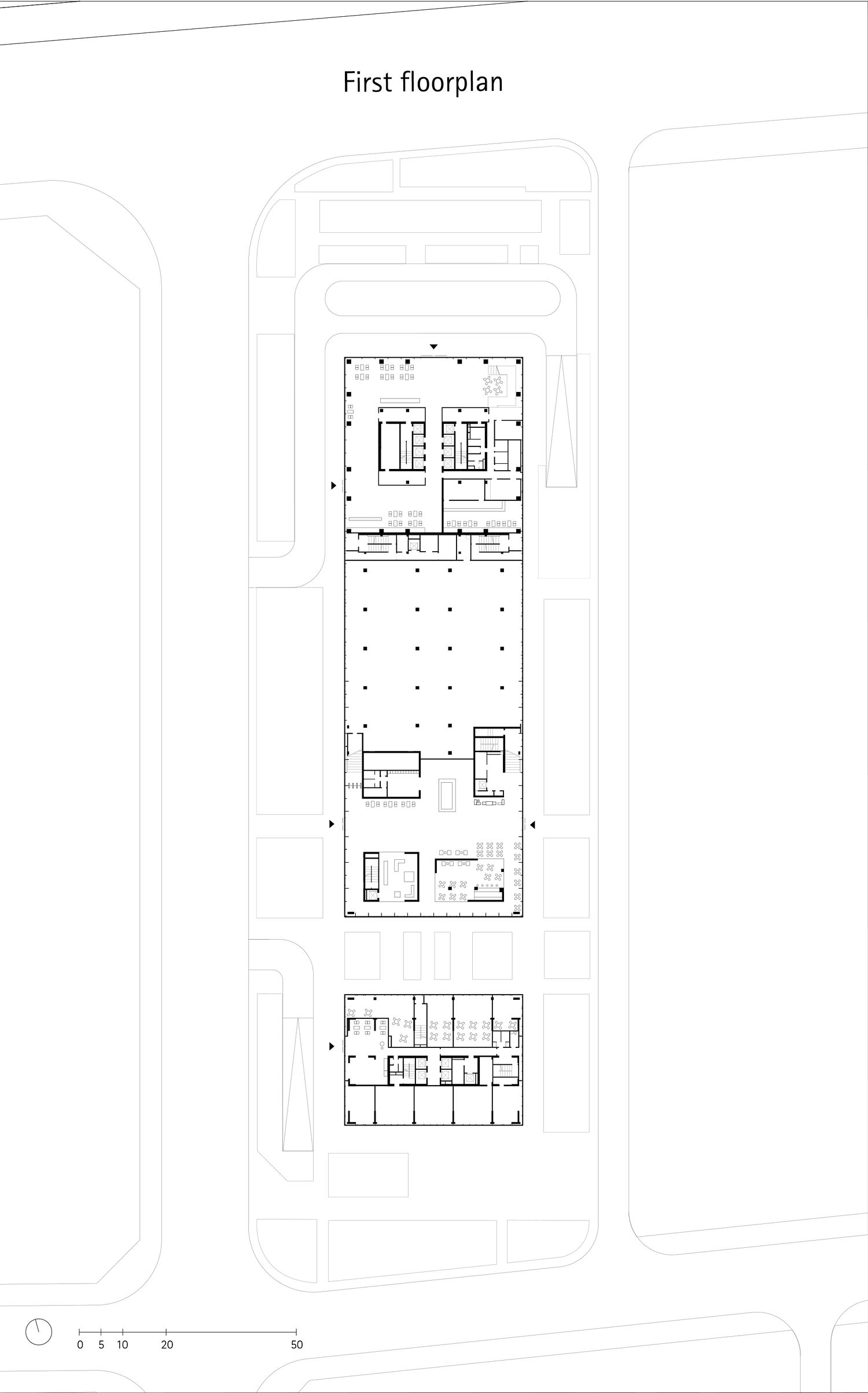
Located in the heart of CITIC Binhai New Town in the Haojiang District of Shantou, CHJ Plaza is a mixed-use complex comprising an office tower, a museum and an apartment tower. It will serve as the headquarters of the CHJ Group. The project is located on the cultural axis of the newly developed urban structure, linking residential and cultural districts along the waterfront. The design arranges the three structures within the specified volume in a clear three-part division: the northern tower houses the company's administrative areas; the central museum building forms the project's central element and continues the public cultural axis; and the southern residential tower concludes the complex and opens up visual connections to the bay.
In the museum, the 'house-in-house' principle organises the climate-controlled exhibition boxes, and bridges and stairs connect these to form a circular route. Open ground floor areas and a public foyer integrate the building into the neighbourhood's network of paths. A continuous aluminium façade band unites the three volumes, while the different shells respond precisely to their respective functions: the office tower features sculpturally structured glass surfaces, the museum area has a transparent structure, and the apartment tower has vertically structured façade elements with integrated ventilation and technical zones. Terraces, light rooms and a roof garden complement the functional structure by adding social and ecological value.
Press releases
Design Meinhard von Gerkan and Stephan Schütz with Tobias Keyl Client CHJ Group GFA 101,625 m² Photographer
CreatAR Images
Projekt data
Design Meinhard von Gerkan and Stephan Schütz with Tobias Keyl Client CHJ Group GFA 101,625 m²
Press releases
Photographer
CreatAR Images
Kontakt
gmp · Architekten von Gerkan, Marg und Partner PR & Communications public.relations@gmp.de T +49.40.88 151 0 www.gmp.de
© CreatAR Images
© CreatAR Images
© CreatAR Images
© CreatAR Images
© CreatAR Images
© CreatAR Images
© CreatAR Images
© CreatAR Images
© gmp Architects
© gmp Architects
© gmp Architects
© gmp Architects
Hinweise zum Copyright Eine honorarfreie Veröffentlichung ist nur gestattet im Rahmen eines redaktionellen Beitrags
über die Architektur der Architekten von Gerkan, Marg und Partner im Kontext des Inhaltes dieses
Booklets. Eine vollständige Nennung der Urheber des Bild- und Planmaterials in eindeutiger
Zuordnung ist obligatorisch. Mit freundlicher Bitte um Zusendung eines Belegexemplars an den folgenden PR-Kontakt: gmp · Architekten von Gerkan, Marg und Partner |